Koncepcja łączy w sobie wykonalność finansową z klarownością architektoniczną i długoterminową elastycznością. Zamiast podejmować ostateczną decyzję już dziś, możesz stworzyć dom, który dopasuje się do różnych etapów życia, budżetu i potrzeb – zbudowany w sposób zrównoważony, przyszłościowy i realistyczny.
Podstawowy dom składa się z dwóch modułów (łącznie ok. 80 m² powierzchni użytkowej). Można go w dowolnym momencie rozbudować o moduły dodatkowe. Trzy moduły tworzą wówczas ok. 120 m² powierzchni użytkowej. Modułowość zapewnia bezpieczeństwo planowania w czasach rosnących kosztów budowy.
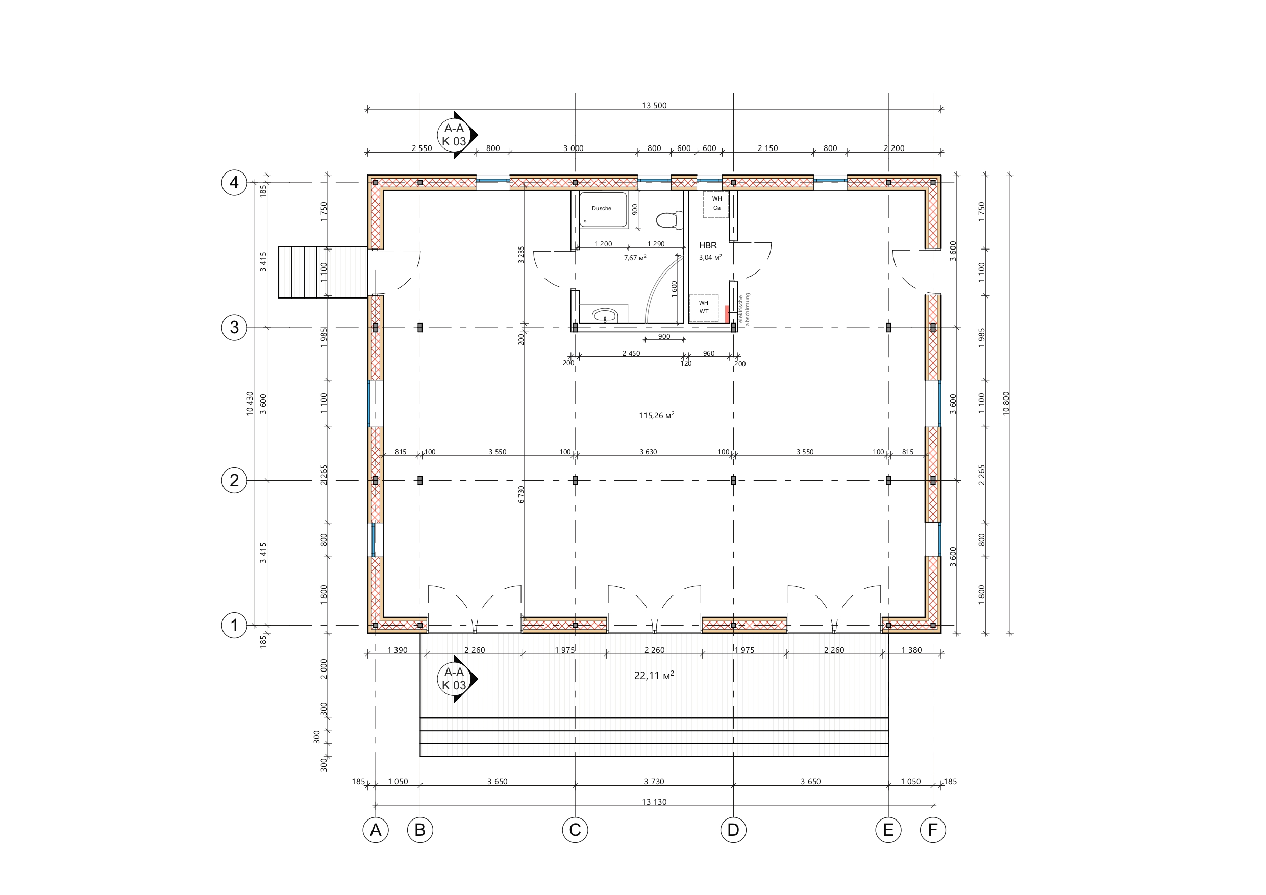
DANE TECHNICZNE
| Powierzchnia użytkowa: | 80 m²/120 m² |
| Powierzchnia zabudowy: | 97,2 m²/145,8 m² |
| Wysokość domu: | 3,6 m |
| Kubatura: | 445.50 m³/660 m³ |
| Kąt nachylenia dachu: | 3-5° |
| Powierzchnia całkowita dachu: | 100.0 m²/150 m² |
| Liczba pomieszczeń: | 4-... |





