NOWOCZESNY DOM KOMPAKTOWY to parterowy dom z płaskim dachem, przeznaczony do całorocznego zamieszkania. Elewacja wyposażona jest w przesuwny system okien, który umożliwia płynne przejście między salonem a tarasem, nadając wnętrzu wrażenie przestronności i powiększając przestrzeń. Dzięki specjalnym ścianom Thermo-Hex, unikalnym właściwościom drewna Kiri oraz zoptymalizowanej konstrukcji, dom charakteryzuje się niskim zużyciem energii. Wysoki udział litego drewna tworzy wyjątkowy mikroklimat i przyjemne warunki do życia. Układ pomieszczeń można znacząco zmienić na życzenie klienta. Montaż zajmuje zaledwie 1 dzień.
DANE TECHNICZNE
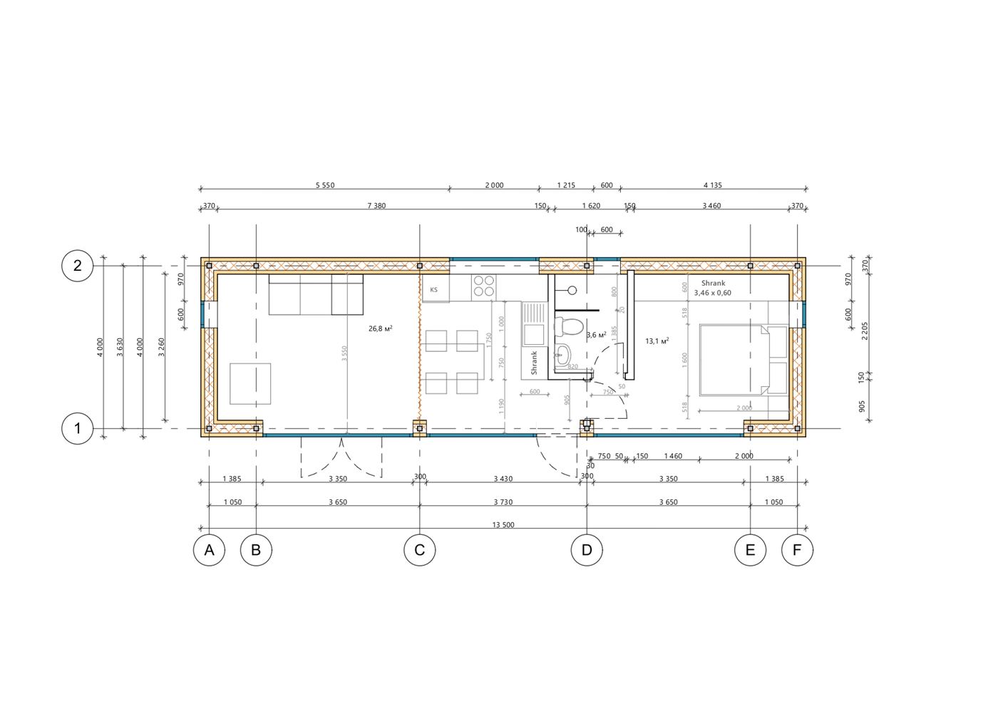
| Powierzchnia użytkowa: | 44 m² |
| Powierzchnia zabudowy: | 54 m² |
| Wysokość domu: | 3,6 m |
| Objętość sześcienna: | 200,50 m³ |
| Kąt nachylenia dachu: | 3-5° |
| Powierzchnia dachu: | 58,0 m² |
| Liczba pokoi: | 3 |
ZOBACZ WIDOK PANORAMICZNY
(po kliknięciu w poniższe zdjęcie uruchomi się widok A360)












